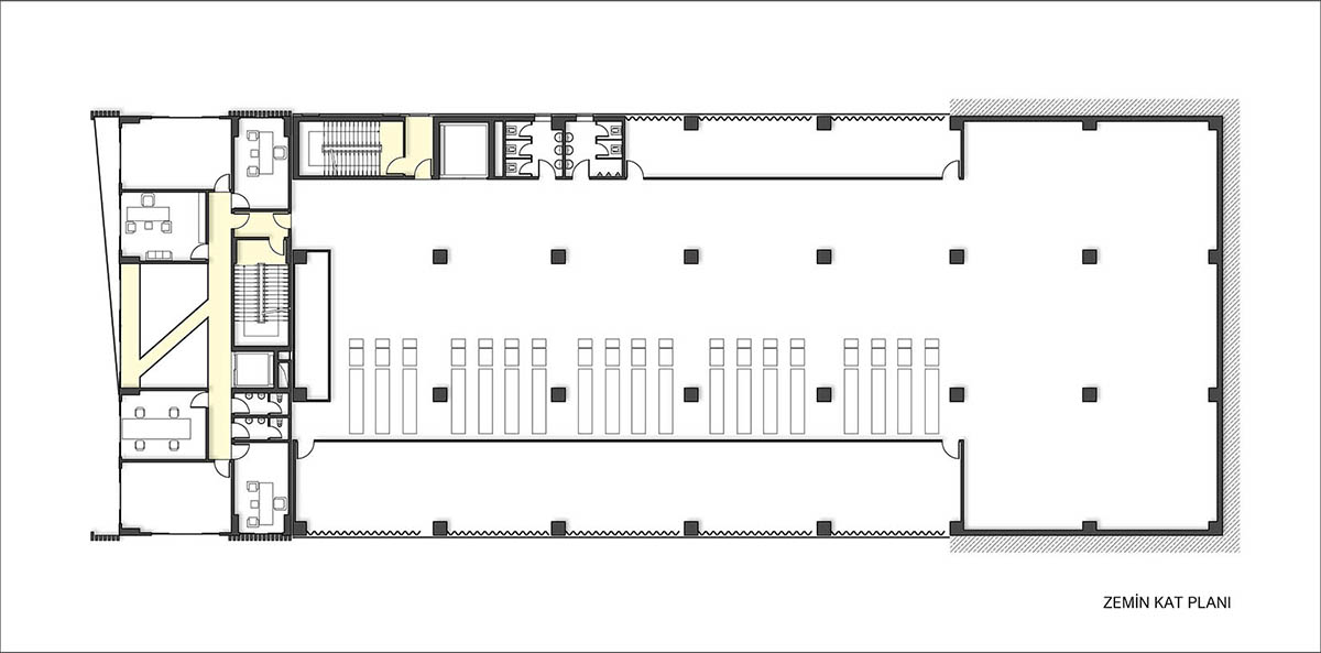
Canavar Tekstil Fabrika Binası

ADI
Canavar Tekstil Fabrika Binası
TARİH
2016
YER
İstanbul
İŞVEREN
Canavar Tekstil
TİPOLOJİ
Fabrika
TOPLAM İNŞAAT ALANI
7.522 m²

 

Galeri